Herdwangen-Schönach:
Dein LivingHaus Traum: Maßgeschneidertes Wohnen in Herdwangen-Schönach
Objekt-Nr.: 30596-17692

Mögliche Außenansicht

Mögliche Küche

Mögliches Bad

Mögliches Schlafzimmer

EG

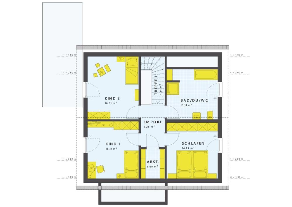
OG

Bemusterung

Bemusterung

Bemusterung

Bemusterung

Bemusterung

















Preis:
800.000 €
Wohnfläche ca.:
204 m²
Grundstück ca.:
1.000 m²
Zimmeranzahl:
6
Viel Familie, viel Platz
Ob über- oder nebeneinander: Gemeinsam teilt ihr euch die Wohnfläche. Und das bedeutet auch, gemeinsam die Entscheidung zur Gestaltung zu treffen. Dein Zweifamilienhaus überzeugt durch große Fenster für ganz viel Licht, einen großflächigen Wohnbereich und natürlich einem Zugang zum Garten. Perfekt zum Zusammen- leben - innen und außen.
Hier gibt"s keinen Streit
... darum, wer jetzt die Badewanne benutzen darf. Schließlich gibt"s zwei riesige Bäder. Oder sollten wir sagen: Wellnessoase? Du entscheidest.
Auf beiden Etagen findest du ähnliche Aufteilungen: Offener Wohn- und Essbereich, Bad sowie Schlafzimmer und Kinderzimmer. Oder möchtest du daraus lieber ein Home-Office machen? Warum nicht! Deiner Fantasie sind keine Grenzen gesetzt.
Größe zeigen
Bei Living Haus steht deine Traumküche immer im Fokus. Offene Küche, eine Kochinsel, ganz viel Stauraum und ein großer Esstisch für Freunde und Familie. Das Ganze gleich zweimal - klingt fantastisch, oder?…
Die Architektur deines Hauses wird durch einen eleganten Erker im Erdgeschoss bereichert, der nicht nur mehr Raum schafft, sondern auch Licht und Wärme hereinlässt. Im Obergeschoss hast du direkten Zugang zu einem Balkon von den Schlaf- und Kinderzimmern aus – ideal für entspannte Momente in der Sonne.
Mit Living Haus erhältst du nicht nur ein Dach über dem Kopf, sondern ein Rundum-Sorglos-Paket: Die Traumküche von Living Haus wird speziell für deinen Grundriss geplant und rechtzeitig zum Einzug geliefert. Du wirst begeistert sein von der Kombination aus modernster Technik und stilvollem Design.
Das Living Haus Bau-Cockpit sorgt dafür, dass du stets den Überblick über dein Bauprojekt behältst. Von der Terminplanung bis zur Dokumentenverwaltung – alles ist digitalisiert und leicht zugänglich. I-KON – Intelligentes Bauen – steht für nachhaltige Bauweise kombiniert mit moderner Technik. Dein neues Zuhause wird nicht nur energieeffizient dank innovativer Dämmung und intelligenter Heizsysteme, sondern auch perfekt auf deine Bedürfnisse abgestimmt.
Finanzielle Sorgen brauchst du dir keine machen: Mit unserem Zuhause-Darlehen erhältst du bis zu 250.000 Euro zu besonders günstigen Konditionen – oft unter dem Marktniveau. Im Zuhause-Paket sind edle Böden, Türen und Sanitäranlagen bereits enthalten und genau aufeinander abgestimmt.
Nicht zuletzt macht dich unser DIY-Ausbau-Coaching fit für den Innenausbau deines Hauses. In drei intensiven Tagen lernst du alles Wichtige von Profis – so meisterst du den Ausbau selbstbewusst und mit Freude.
Ihr wollt schnell und unkompliziert mit mir in Kontakt treten?
Dann bucht euch hier euren Kennenlerntermin!:
https://scheduler.zoom.us/benjamin-burk/kennenlerntermin-
Haustyp: Zweifamilienhaus
Bad: Dusche, Wanne, Fenster
Anzahl Schlafzimmer: 4
Anzahl Badezimmer: 2
Gäste-WC: ja
Garten: ja
Alarmanlage: ja
Qualität der Ausstattung: gehoben
Baujahr: 2027
Zustand: Haus in Planung (projektiert)
Heizung: Zentralheizung
Energieausweistyp: Bedarfsausweis - gültig vom 01.01.2026
Energieeffizienz-Klasse: A+
Baujahr laut Energieausweis: 2027
Das könnte Ihnen auch gefallen

Benjamin Burk - Freie Handelsvertretung der Living Fertighaus GmbH
Herr Benjamin Burk
Hohe Warte13
72488 Sigmaringen
Telefon: +49 157 79258525















































